2026/02/07新潟店
規格プランをカスタマイズ?参考例をご紹介!

皆さんこんにちは!
COZY新潟の鈴木です。
2026年を迎えて、冬が終わればもうすぐ新年度!
新しい環境での生活を控えている方や
心機一転、お家づくりスタート!という方も
いらっしゃるかもしれませんね。
今回は、失敗しないお家づくりのポイントの1つ、
COZYの選べる「規格プラン」についてご紹介します!
「規格」と聞くと、なんとなく
〇間取りや部屋の広さが限定されてしまう…
〇建物が入る土地しか選べない…
〇自分たちの希望通りのプランがない…
なんてイメージがありませんか?
COZYでは、プロが考えた規格の間取りをベースに
必要なところだけカスタマイズできる
自由度の高いお家づくりが可能です!
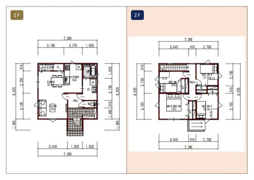
例えばこちらのプラン↓

玄関からすぐ水回りがあり、そのままキッチンへ直行できる回遊動線が嬉しい間取り。
このままでも素敵なプランだけど、2階は4部屋欲しいなあ…という場合に

1階の間取りは変わらず、2階をカスタマイズ!
各部屋に収納が付いた4LDKのお家が実現しました。


※画像はイメージです
さらにこちらのケース▼

1階にフリースペースがある4LDKの間取り。
お部屋がたくさんあって便利そう!だけど
もう少し開放的なお家が理想なんだよなあ…とのお声で

2階は3部屋+フリースペースを確保しつつ
リビング上に吹き抜けを設けました!
より明るいお家になり、2階フリースペースも
吹き抜けに隣接しているので
趣味時間を楽しむ場所として活用できそうです!



※画像はイメージです
このように自分で一から決めるよりも迷いなく、
希望の間取りを実現できるのがCOZYの魅力!
そして何より、設計士がベースを作っているため
"失敗しない"お家づくりができる
というところが最大のポイントです(^^)
間取りで失敗したくない方や
注文住宅で選択肢が多すぎて自信がない方、
建売住宅の間取りがしっくりこない方は
ぜひ一度COZYの規格プランを
見にいらしてくださいね(^^)
ー・-・-・-・-・-・-・-・-・-・-・ー
◎イベント情報◎
◎SNS情報◎
COZYのお家づくりが気になったら、
まずは”無料”の資料請求!
カタログダウンロードはこちらから

-
営業非公開: 鈴木 愛夕
皆さんこんにちは!COZY新潟の鈴木です。
子どもの頃からお家を見ることが好きだったので、お家づくりに強い憧れがあり、学生時代には二級建築士の資格を取得しました。出身は燕市で、近所に有名な背脂ラーメンのお店があったので、昔からラーメンは大好きです!
同じカテゴリーの記事
無料カタログ請求
暮らしを思いきり楽しめる、4つのデザインテイスト
無駄なく賢い家づくりをするならまずは資料請求を!
ステキ!がたっぷりつまったデザイン集
参考になる間取り 価格や仕様・性能のことがまるわかり

















